(Grafik/Repro: IFK/Hofherr)Weisbach. (pm)
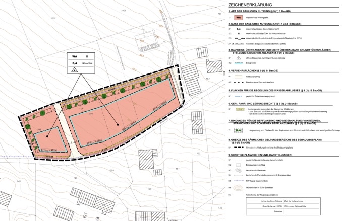
Die Gemeinde Waldbrunn veräußert im Ortsteil Weisbach, in dem neu erschlossenen Baugebiet Wagenweg ein Baugrundstück. Das Grundstück mit der Flurstücknummer 1.200 ist insgesamt 1.103 Quadratmeter groß. Der Preis je Quadratmeter liegt bei 85 Euro, darin sind die Erschließungskosten bereits enthalten. Für Familien ist jedoch eine Kinderermäßigung möglich. Der Käufer ist verpflichtet, das Grundstück innerhalb von fünf Jahren nach Abschluss des Kaufvertrags zu bebauen.
Interessenten können bis spätestens 20. August eine formlose Bewerbung an die Gemeindeverwaltung richten. Die Mailadresse lautet ed.dl1776858190awned1776858190o-nnu1776858190rbdla1776858190w@sua1776858190htar1776858190. Für Fragen und Auskünfte zu diesem Bauplatzangebot steht Christoph Mechler vom Liegenschaftsamt Waldbrunn unter Tel. 06274/930-232 zur Verfügung.
Weisbach ist mit Mülben der kleinste Ortsteil der Winterhauch-Gemeinde Waldbrunn. Dennoch bilden die 395 Einwohner (Stand 31.12.2018) eine lebendige Dorfgemeinschaft mit vielen gemeinsamen Aktivitäten. Höhepunkt ist das Weisbacher Brunnenfest, das jährlich Mitte Juli stattfindet. Getragen wird die Gemeinschaft von den örtlichen Vereinen, der Freiwilligen Feuerwehr und dem Ortschaftsrat.
